Logo

The Hills - L'empreinte de l'exception - A12

€ 396 000

2
1
100

Trust a le plaisir de vous dévoiler The Hills, un projet résidentiel unique à Gastuche où bien-être, élégance et raffinement s'unissent pour créer un art de vivre.

Composé de deux entités distinctes à taille humaine proposant respectivement 6 et 3 appartements, The Hills forme un ensemble immobilier harmonieux.

Les appartements, élégants et lumineux, offrent des finitions de grandes qualités et soignées, chaque détail étant pensé pour le confort et le bien-être de leurs occupants, dans des intérieurs chaleureux et conviviaux.

Idéalement situé entre Grez-Doiceau et Wavre en retrait de la chaussée, ce projet se distingue par de beaux espaces verts.

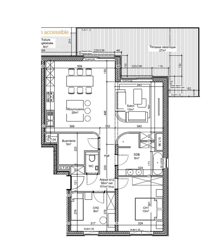
Cet appartement au 1er étage (surface habitable brute : +/- 100 m²) comprend un hall qui dessert un lumineux séjour, une cuisine ouverte équipée, une buanderie, 2 belles chambres, une jolie SDB et un WC séparé.

Le bien profite d'un agréable extérieur avec terrasse.

Il bénéficie d'un emplacement de parking extérieur en supplément (15.000  HTVA).

Sols : Carrelage et parquet semi-massif en chêne.

Technique : PEB prévisionnel A, compteurs individuels (eau, électricité et gaz), chaudière individuelle au gaz, châssis double/triple vitrage en aluminium/PVC, ventilation simple flux.

Communs : Local technique, local poubelles et local vélos.

Vente soumise à la TVA (21%).

Début des travaux : Mi-octobre 2025.

Photos 3D non contractuelles.

Infos : 010/68.01.81

Informations générales


Étage1

Nombre d'étages2

Nombre de chambres2

Nombre de salles de bain1

Nombre de toilettes1

Nombre de places de parking externes1

Surface habitable100 m²

Surface du living39 m²

DisponibilitéAprès travaux

Orientation facade arrièreSud-est

Performance énergétique


Certificat d'électricitéPas encore demandé(e)

Financier


Prix€ 396 000

Coûts totaux€ 3.064,17

Total€ 399.064,17

Confort


ChauffageC.C. au gaz

VitrageDouble vitrage

Construction


Année de construction2026

ÉtatNouvelle construction

Informations urbanistiques


Droit de préemptionDemandé(e)

PermisDemandé(e)

CitationDemandé(e)

Permis de lotissementDemandé(e)

AffectationZone d'habitat

Zone à risque d'inondationNon

Agencement


Séjour/cuisine39.0

Buanderie5.0

Chambre à coucher 113.0

Chambre à coucher 29.0

Salle de bains 18.0

Partagez cette propriété


Biens similaires