Trust a le plaisir de vous présenter ce magnifique projet neuf réalisé en structure chêne par la société Emac in Wood. 
Vous serez séduits par la qualité de fabrication et par l'aspect authentique et chaleureux de ce bien. 
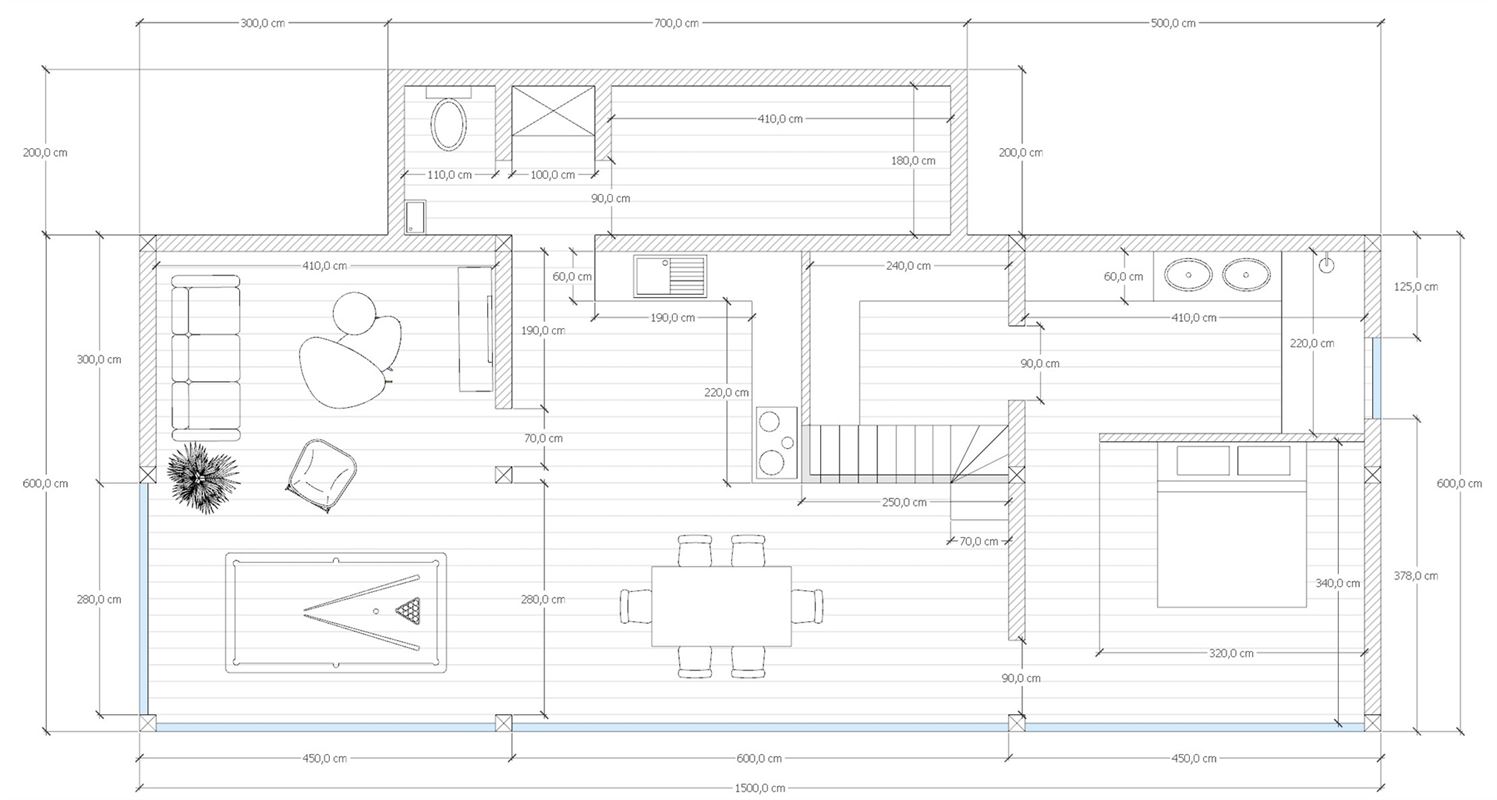
La maison offre une superficie totale/habitable brute de +/- 162,50 m² et se compose d'un hall d'entrée qui dessert un beau séjour (comprenant un espace salon et un espace salle à manger), un espace cuisine, un espace buanderie/technique et un WC séparé. 
Le rez-de-chaussée se complète d'une agréable chambre avec sa propre salle d'eau et son espace dressing. 
Le 1er étage  (de type mezzanine) propose une chambre, une salle d'eau et une pièce aménageable en bureau ou en chambre.  
La maison peut-être aménagée à la carte selon les besoins du client. 
Le bien dispose d'un terrain de 10 ares 60 orienté Sud-Est et profitant d'une jolie vue sur la campagne environnante. 
Technique : Pompe à chaleur (chauffage sol au rez-de-chaussée et 2 radiateurs à l'étage), boiler, châssis DV aluminium, panneaux photovoltaïques, système de ventilation C+EVO, citerne d'eau de pluie raccordée (robinets extérieurs et WC). 
Plan secteur : Zone d'habitat à caractère rural.
Une liste précise de qui est inclus dans le prix actuel est disponible sur simple demande.
Plan de divisons du terrain provisoire. 
Vente sous réserve d'acceptation de la division du terrain par la commune et vente sous réserve d'acceptation du permis par la commune. 
Cette vente est soumise au régime TVA pour la partie construction (368.025 € HTVA) + tandis que le terrain est soumis aux frais d'enregistrement (155.000 € hors frais). 
Photos 3D non contractuelles. 
Infos : 010/68.01.81. 



















