Trust a le plaisir de vous dévoiler The Hills, un projet résidentiel unique à Gastuche où bien-être, élégance et raffinement s'unissent pour créer un art de vivre.
Composé de deux entités distinctes à taille humaine proposant respectivement 6 et 3 appartements, The Hills forme un ensemble immobilier harmonieux.
Les appartements, élégants et lumineux, offrent des finitions de grandes qualités et soignées, chaque détail étant pensé pour le confort et le bien-être de leurs occupants, dans des intérieurs chaleureux et conviviaux.
Idéalement situé entre Grez-Doiceau et Wavre en retrait de la chaussée, ce projet se distingue par de beaux espaces verts.
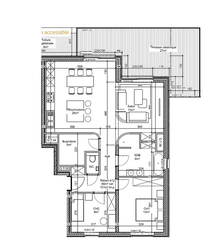
Cet appartement au 1er étage (surface habitable brute : +/- 100 m²) comprend un hall qui dessert un lumineux séjour, une cuisine ouverte équipée, une buanderie, 2 belles chambres, une jolie SDB et un WC séparé.
Le bien profite d'un agréable extérieur avec terrasse.
Il bénéficie d'un emplacement de parking extérieur en supplément (15.000€ HTVA).
Sols : Carrelage et parquet semi-massif en chêne.
Technique : PEB prévisionnel A, compteurs individuels (eau, électricité et gaz), chaudière individuelle au gaz, châssis double/triple vitrage en aluminium/PVC, ventilation simple flux.
Communs : Local technique, local poubelles et local vélos.
Début des travaux : Mi-octobre 2025.
Vente soumise à la TVA (21%).
Photos 3D non contractuelles.
Infos : 010/68.01.81




















