Maison contemporaine 4 façades, située sur les hauteurs de Corroy-Le-Grand dans une rue sans issue. Elle dispose d'un terrain de +/- 8ares 90 répartis sur différents niveaux.
Elle se compose comme suit:
Au rez-de-chaussée : Hall d'entrée légèrement surélevé par rapport au salon (26 m²), séjour avec cuisine ouverte super équipée ( 41 m²), salle de bains avec wc, atelier-buanderie.
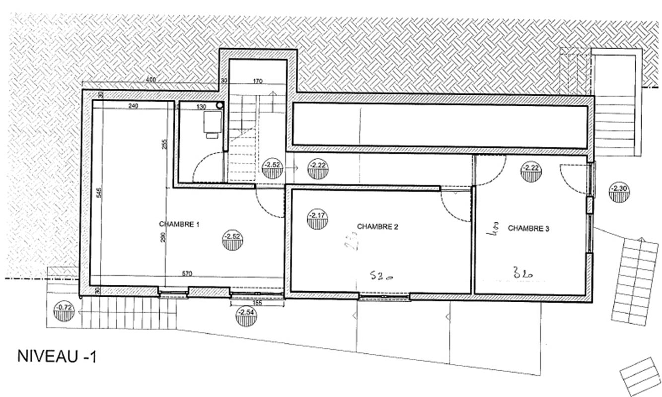
Au rez-de-jardin (-1) : Un hall de nuit dessert 3 chambres (22 m²; 15 m² et 13 m²) et un espace chaufferie/stockage.
Beau jardin clos avec abri, terrasse plein sud.
Technique: Chauffage central au mazout, 11 panneaux solaires (faible coût élec.), climatisation réversible, boiler thermodynamique, citerne eau de pluie, double vitrage, contrôle électrique en ordre.
Contactez-nous au 010/68.01.81. ou 0460/96.55.62.














































