Contact
Chaumont-Gistoux: +32(0)10 68 01 81
Grez-Doiceau: +32(0)10 45 86 63
nicolas@trustimmo.net
L'immobilière Trust a le plaisir de vous présenter ce superbe projet immobilier neuf, composé de 8 appartements haut de gamme. Idéalement située en plein cœur du Brabant Wallon, à 1,7 km à peine du centre de Wavre à Bierges, « La Résidence des Combattants » est déjà vouée à un avenir prometteur. Son cadre bucolique, ses appartements aux finitions et isolation de qualité sont des atouts incontestables.
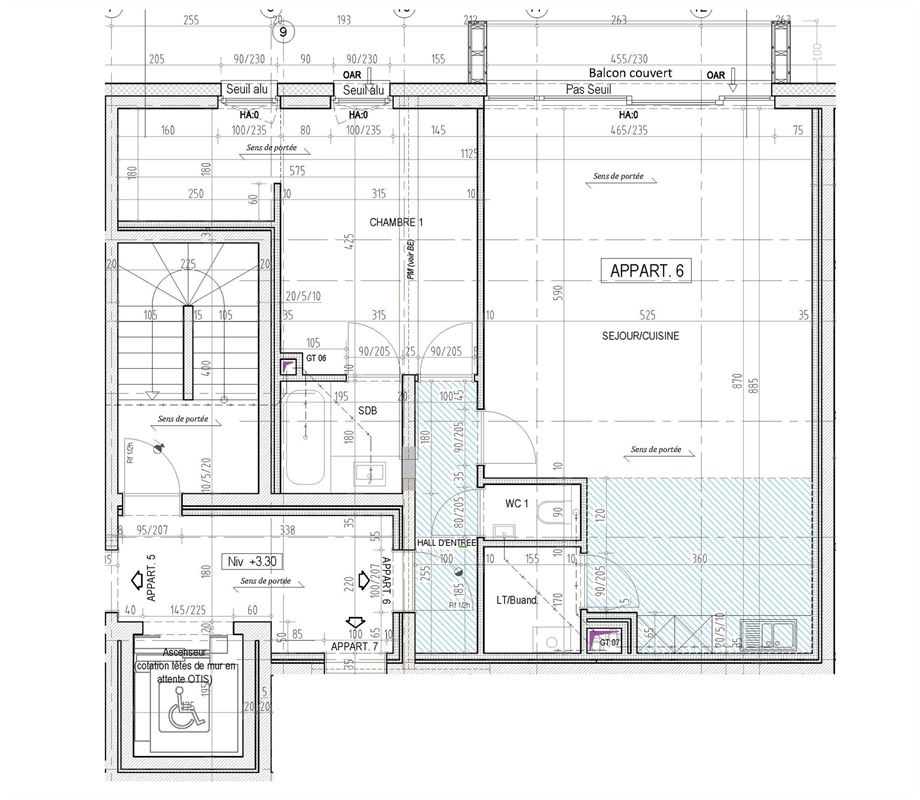
L'appartement 6 est situé au premier étage.
Il se compose comme suit: Hall d'entrée (avec possibilité de placard intégré) , wc "invité", grand séjour avec baies vitrées, espace cuisine (budget: 8.500€ htva), salle de bain, une chambre.
Le séjour donne accès à un petit balcon couvert (5m²) .
L'appartement dispose d'un emplacement de parking sous-terrain (25.000€ htva supplémentaires - obligatoire) et d'une cave de 5m² (3.500€ htva supplémentaires - obligatoire).
Technique: PEB prévisionnel A, chaudière au gaz individuelle, châssis PVC double vitrage. (cahier des charges disponible sur demande).
Vente sous régime TVA - Loi breyne.
Photos 3D non contractuelles.
Pour plus d'informations ou pour planifier une visite, contactez l'agence au 010/68.01.81.
