Opportunité à ne pas manquer !!
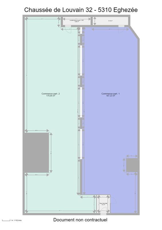
L'immobilière TRUST REAL ESTATE a le plaisir de vous présenter cette grande surface commerciale de +- 365m² située en plein coeur d'Éghezée !!!
Sa situation privilégiée sur l'axe principal de la commune, à deux pas des écoles et des transports en commun vous permettrons de jouir d'une grande visibilité.
Elle se compose de deux grandes pièces, de deux toilettes séparées, d'une kitchenette, d'une petite cour extérieur, d'un garage avec porte manuelle ainsi que de deux entrées (avant et arrière).
De plus, un accord de l'urbanisme a déjà été octroyé pour y autoriser le secteur de l'Horeca.
Technique: Chauffage électrique (pompe à chaleur), châssis double vitrage en PVC blanc, alarme et caméra de surveillance, reliée aux égouts.
Prix : 2500€ / mois
Disponibilité : à la signature du bail
Pour toutes informations supplémentaires, contactez votre agent immobilier Julien Canha Bruno au 0472/87.19.30 ou julien@trustimmo.net














