Logo

Appt 1- RDC 2ch avec jardin! Superbes finition

€ 425.000
Option

2
1
90.54
1

L'immobilière Trust a le plaisir de vous présenter ce superbe projet immobilier neuf, composé de 8 appartements haut de gamme. Idéalement située en plein cœur du Brabant Wallon à Bierges, à 1,7 km à peine du centre de Wavre, « La Résidence des Combattants » est déjà vouée à un avenir prometteur. Son cadre bucolique, ses appartements aux finitions et isolation de qualité sont des atouts incontestables.

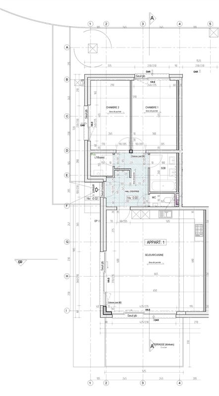
L'appartement 1 est situé au rez-de-chaussée, coté gauche (3 façades , lui offrant une très belle luminosité).

Cet appartement dispose de son entrée privative et se compose comme suit: Hall d'entrée (avec possibilité de placard intégré) , wc "invité", grand séjour avec baies vitrées, espace cuisine (budget: 10.000€ htva), salle de bain, 2 chambres et buanderie.

Le séjour donne accès à une superbe terrasse (17m²) et son jardin privatif.

 L'appartement dispose d'un emplacement parking sous-terrain (25.000€ htva supplémentaires - obligatoire) et d'une cave de 5m² (3.500€ htva supplémentaires - obligatoire).

Technique: PEB prévisionnel A, chaudière au gaz individuelle, châssis PVC double vitrage. (cahier des charges disponible sur demande).

Vente sous régime tva - Loi breyne.

Photos 3D non contractuelles.

Pour plus d'informations ou pour planifier une visite, contactez l'agence au 010/68.01.81.

Informations générales


Nombre de chambres2

Nombre de salles de bain1

Nombre de toilettes1

Nombre de places de parking1

Surface habitable90.54 m²

Surface du living44.2 m²

DisponibilitéAprès travaux

Orientation facade arrièreSud

Performance énergétique


Certificat d'électricitéPas encore demandé(e)

Financier


Prix€ 425.000

TVA€ 3.150

Coûts de construction€ 15.000

Prix du parking€ 25.000

Coûts totaux€ 6.223,82

Total€ 431.223,82

Confort


ChauffageC.C. au gaz

CuisineCuisine ouverte

VitrageDouble vitrage

ChâssisPVC

Construction


Construction4 façades

Année de construction2023

ÉtatNouvelle construction

Informations urbanistiques


Droit de préemptionDemandé(e)

PermisDemandé(e)

CitationDemandé(e)

Permis de lotissementDemandé(e)

AffectationDemandée

Agencement


Hall d'entrée9.5

Toilette 11.5

Salle de séjour45.3

Chambre à coucher 114.3

Chambre à coucher 212.7

Salle de bains 14.7

Buanderie2.4

Partagez cette propriété


Biens similaires